
Preface
This is the first attempt at a new blog series with quick uppdates about projects on the RIT Henietta campus that affect students, such as the SHED. Features that you would expect from a normal blog (working category buttons, RSS feed, social sharing, WCAG 2.1 compliance, etc) are coming soon but won't be available for the first few posts.
Basic Summary
Minute meetings were recently released that detail progress on the SHED, and were aimed at assisting faculty in preparing to teach next Fall. There was also this blurb:
stay tuned as we help colleagues get ready for Fall 2023 SHED/Wallace Classrooms
which implies that the complex remains on track for a Spring 2023 occupancy certificate and a Fall 2023 general opening. As part of this meeting, faculty were invited to a new page, rit.edu/teachshed, which contains details about the quantity and features of classrooms in each building.
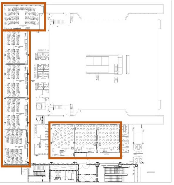
SHED
- 4 rooms with capacity for 150, similar to the test classroom currently in SLA.
- 1 room with capacity for 144, consisting of tiered seating.
- No updates at this time for other spaces, like the glass box theatre or dance studio.



Wallace
The plans for Wallace are much more confusing, and I feel they might still be somewhat in flux on RIT's end.
- 1 room with capacity for 60.
- 1 room with capacity for 30.
- 3 rooms with capacity for 48.
- 17 (!) rooms with capacity for 36. I can only find 16 on the floor plans.

4 of the 36-seat classrooms.


Analysis
The SHED/Wallace complex will materially change the learning and teaching experience when it opens in Fall 2023. Some of the effects are now, or already have been, quite clear:
- Creating a large quantity of new learning spaces; in fact, I would call it a "shift" of the gravitational center of the campus back towards the central third, as opposed to the last new buildings (GCI, SUS, MAGIC) which are more on the edges of campus.
- Focusing the intersection of Technology, Arts, and Design (TAD) with all three parts of TAD under one roof.
- Rethinking how a library space serves its users.
Other effects remain unclear, and some concerns are amplified:
- What will happen to the usage of non-SHED classrooms? The broad plan has been to turn more of these spaces into "research" labs, but most of the SHED rooms are "GP" or general purpose and the rooms these would replace are often in older buildings (eg. GLE, CLA) where engineering constraints limit how much can be changed beyond interior furniture.
- The Gleason bus circle has been closed for the duration of construction, and replaced with the F lot stop. The sheer quantity of classrooms would overwhelm a bus picking up students at 1:50 after a 1:45 class. Also, I imagine some students have gotten used to a F-lot stop and PATS likely has to make a decision between serving both, or investing in additional transit capacity (which RIT has been reluctant to fund in the past).
- Who will be in charge of the SHED? 2021 plans mentioned the need for a facility manager but no person has been announced yet. On a similar level, to keep the building in a state of good repair FMS likely needs additional staffing, at a time when they are suffering from existing shortages.
Opinions and Closing
I'll edit this in tomorrow since the goal was to get this out ASAP. TL;DR it's good progress but I have concerns with the following:
- Noise insulation of the "quiet study" areas.
- Can the hallways really handle all the traffic? It would be hard to stagger class times in the non-large format rooms (alignment with the standard RIT time blocks) and leaving rooms empty during the day seems wasteful.
Other Resources
SHED Clubs and Performance Groups Survey - this was sent in May 2022 to leadership of student clubs and is mostly focused on the Performing Arts side of things.
FMS Maps Link - currently inactive or restricted; the building # for the SHED, aka "SHD", is 11.
12/2021 Classroom Utilization - presentation given to faculty on 12/9/21
October 2021 Status Update - presentation given to faculty on 10/14/21
Thanks for reading!
Other Posts
